Offers in Excess of £89,950 Sold Subject to Contract

Woodland Place, Bedlinog, Treharris, CF46 6TN

3 2 1

Key Features

  • SPACIOUS 3 DBL BED SEMI
  • SEMI RURAL VILLAGE LOCATION
  • SOLD WITH NO UPWARD CHAIN
  • IN A NO THROUGH ROAD
  • 27' LOUNGE/DINER & 2ND RECEPTION
  • LOTS OF FURTHER POTENTIAL

Spacious THREE DOUBLE BEDROOM semi detached house, offering lots of further potential and in need of total updating. The property is situated in a no through road, offers no upward chain and is in a SEMI RURAL VILLAGE LOCATION.

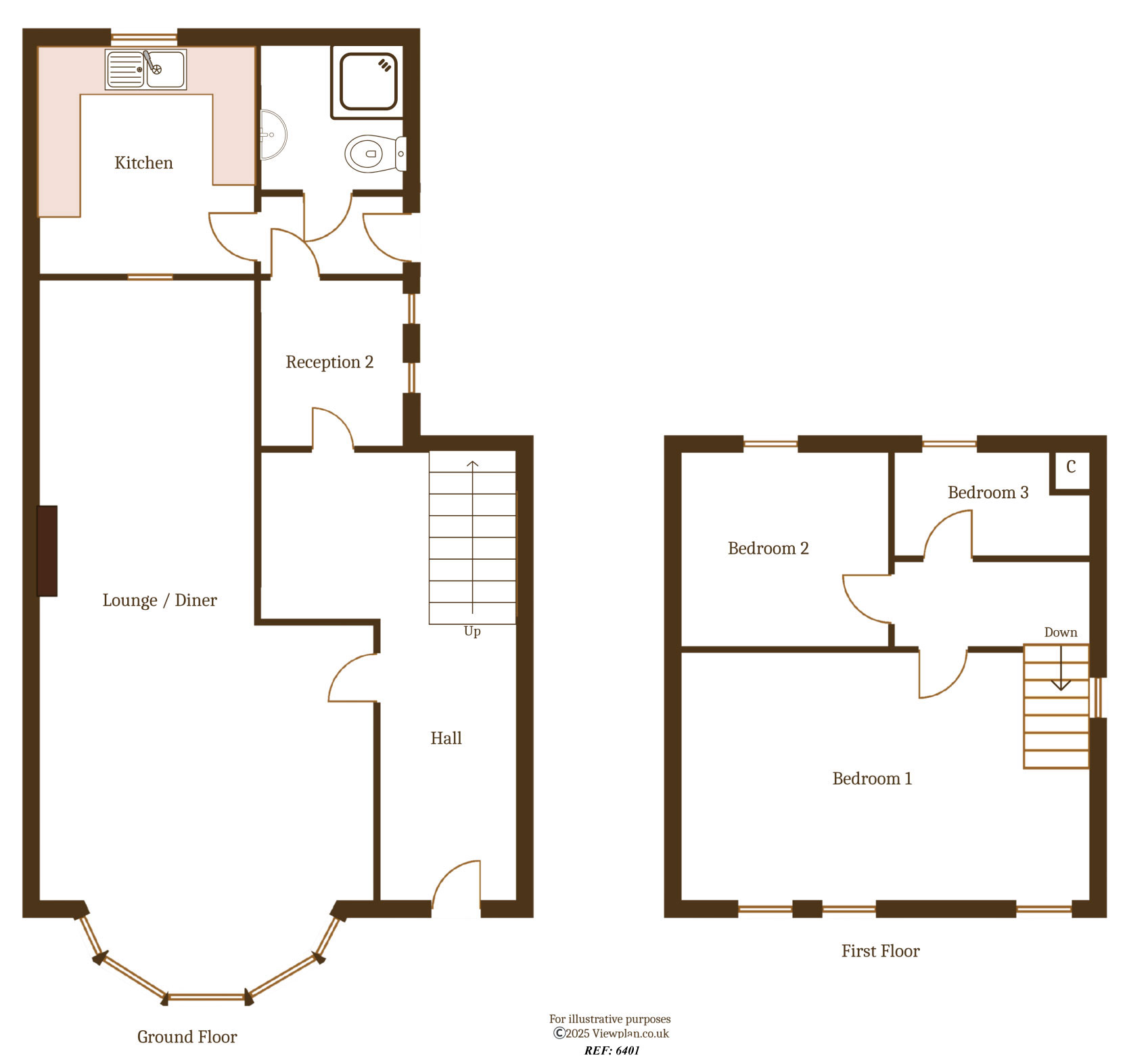
The accommodation comprises of an entrance hall with terrazzo tiled flooring, a 27' lounge/dining room, second reception room, rear hall, kitchen, ground floor shower room/WC., three bedrooms with the master bedroom being over 18'. Forecourt to front and GARDEN TO REAR with storage outbuilding.

Additional benefits to the property include gas combination central heating and double glazing.

Bedlinog is an ideal village to enjoy picturesque views and lovely countryside walks. The village has a local pub, a selection of shops, schools to junior levels and bus stops.

ACCOMMODATION: (Approximate dimensions)

HALLWAY:
Double glazed front door gives access to a terrazzo tiled hallway and staircase with wooden spindles and pillar.

LOUNGE/DINER:
27' 5" x 11' 6" (Narrowing to 9' 7"). A nice size reception room which was originally two rooms with high coved ceilings, bay window to front and single glazed window to rear overlooking kitchen. Frosted single glazed window to the rear overlooking the kitchen.

SECOND RECEPTION ROOM:
9' x 7' 4". Has window to the side and deep under stairs storage cupboard. Door to rear hall.

REAR HALL:
The rear hall has an internal door to the kitchen and ground floor shower room, double glazed external door to side.

KITCHEN:
10' x 9' 5". The kitchen has a range of wall and floor units with work surfaces, one and a half bowl sink unit, there are tiled splashbacks, electric cooker point, plumbed for automatic washing machine and window overlooking rear garden.

SHOWER ROOM/WC.:
6' 6" x 6' 4". Has a white suite comprising of pedestal wash hand basin, low level WC., shower cubicle with electric shower over, tiled walls and floor, clad ceiling, heated towel rail, wall mirror with lighting and window to rear.

FIRST FLOOR:

LANDING:
Gives access to loft, window to side.

BEDROOM 1:
18' 6" (Narrowing to 15') x 10'. An excellent size master bedroom with three windows to front.

BEDROOM 2:
13' 6" (Narrowing to 10' 8") x 9'. Another double bedroom with window to the rear.

BEDROOM 3:
10' 6" x 8' 6". A small double bedroom with window to rear and cupboard housing the combination boiler.

HEATING:
Gas central heating fired by the combination boiler located in a cupboard in bedroom three.

GARDENS:
FRONT: Astro Turf forecourt to front with low raised walls and wrought iron fencing. Pillars and garden gate giving access to the side and rear.
REAR: There is a tired rear garden which is need of further cultivation with a good size outbuilding ideal for storage.

COUNCIL TAX: BAND B.

PRICE: OFFERS IN EXCESS OF £89,950 - FREEHOLD

JJ6401

These particulars have been prepared as a general guide. We have been informed by the Vendor/s or their Representative/s regarding the Tenure. We have not tested the services, appliances or fittings. Measurements are approximate and given as a guide only.